リノベーションの陽彩コーポレーション リノベーションの陽彩コーポレーション

HOME > リノベーション物件一覧 >和みモダン@新大阪

和みモダン@新大阪

ロゴ築23年のマンションをリノベーションして「和」と「モダン」の新しい形態を追求した「和みの空間」を生み出しました。

いま見直されている「和」のテイストと現代的モダンを取り入れた新感覚リノベーションで、自宅を新しい「やすらぎ空間」に生まれ変わらせました。

日本人なら誰でも落ち着きを感じる和の空間です。

ビフォーアフター

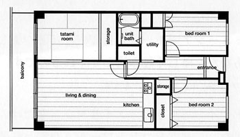
リノベーション前

リノベーション前写真
リノベーション前図面

リノベーション後

リノベーション後写真
リノベーション後図面

 

概要説明

概要説明私たちが最初に手がけたのが、大阪市淀川区西宮原にある築24年、73u、3LDKのマンションです。和のテイストを取り入れた、癒しの空間を提案しました。Beforeとafterの図面を比較していただくとわかりますが、リビングダイニングの広さはほとんど同じです。

ただ、和室だった部分を使い勝手のいいアイランドキッチンに変えました。また、トイレやバスルームをほぼ真ん中のスペースに配するという斬新な間取りに変更しています。

しかも、バスルームの壁は、開放感があるようにガラス張りにして、浴槽はオーバルシェイプで、機能的で使いやすくなっています。

玄関入って右側は約4畳の和の空間です。実はこの物件でこだわったのはこの玄関部分です。「玄関を開けるとそこは和を基調とした癒しの空間」というコンセプトで、玄関を開けると、やわらかなアール(曲線)を描いたまるでアートミュージアムのような美しいホールや廊下が広がります。

また、畳は天然井草を使用した琉球畳、壁には藻の入った和紙クロス、天井は和紙を織り上げた紙布、床の間に置かれた飾り台は橡の無垢材といったように天然素材をふんだんに用いることで、癒しの空間を作り出しています。

しかも、エントランス部分は優れた調湿機能を持ったINAXエコカラットタイルを使い、健康にも配慮。壁面に丸みを持たせ、見た目にも柔らかな空間となっています。

和の感覚を取り入れながらも、水回りはヨーロピアンホテルのような機能性と快適性の両方を実現。全体的には、新築マンションにありがちなまっさらなイメージではなく、少しアンティークな色調で統一してあり、落ち着いた物件になっています。

リノベーションのこだわりポイント

ミュージアムホールと見まがうばかりの エントランス

和みモダンのこだわりポイント玄関を開けたら広がるエントランスは、家に帰って最初に目に触れる重要な場所。やわらかなアールの形状が視覚的にも癒され、「なごみモダン」のコンセプトにぴったりの仕上がり。ライトアップすると幻想的な雰囲気に……。

和室は天然素材を用いたいやし空間

和みモダンのこだわりポイント入り口のドアを開けると「和」のいやし空間が広がります。壁には藁の入った和紙クロス、天井には和紙を織り上げた紙布、床の間に置かれた飾り台は橡(とち)の無垢材を使用。

天然井草を使用した琉球風畳など、天然素材をふんだんに用いた優しいいやし空間です。

左右どちらにも広がるウォークインクローゼット

和みモダンのこだわりポイント 左右どちらにも広がり、使い勝手のよいウォークインクローゼット。 「この中で住めそう〜」と思えるほどです。短いピッチで棚位置が調整可能ですから、シャツやセーターなどの型くずれしやすいアイテムもきちんとしっかり収納可能。ショップのディスプレイのような素敵なクローゼットになります。

洋室は広がりのあるフリースペース

和みモダンのこだわりポイントひろがり感のあるフリースペースに。ダウンライトがお部屋全体をやわらかく照らし、半透明のガラス扉がリビングからの光も通すので、さらに明るさが増します。

一面ミラーの洗面スペース

和みモダンのこだわりポイントゆったりと身支度ができる大きな一面ミラーのホテルのような洗面スペース。耐久性がよく、メンテナンスしやすい人工大理石を使用したオリジナル洗面台は高級感たっぷり。

カウンター下部には十分な収納スペースが設けられ、収納力もたっぷり。床材には天然大理石を使用。

開放感のあるガラス張りのバスルーム

和みモダンのこだわりポイント開放感のあるガラス張り。広々とした1616サイズのお風呂です。オーバルシェイプのひろびろ浴槽は見た目に美しいだけでなく、機能的にも人間に優しい形で、のびのびくつろげます。浴室換気暖房乾燥機つきです。

広々すっきりのリビングダイニング

和みモダンのこだわりポイントひろがり感のある洋室。大きな収納力を備えた可動式のできる間仕切りで、部屋の形も自由にアレンジ。1LDKから3LDKまで、ライフスタイルにフィットしたフレキシブルな間取りにアレンジすることが可能です。
天井はすっきりとダウンライトでまとめました。アクセントウォールにはライティングダクトに設置したスポットライトでポイントをつくっています。

家族コミュニケーションの中心地・アイランドキッチン

和みモダンのこだわりポイント開放的で明るく見通しのよいアイランドキッチンは、家族のコミュニケーションの中心になります。ゆったりとした1950サイズでガラストップ3口ガスレンジ、食器洗い乾燥機、浄水器を装備しています。

天然素材を使ったフローリング

和みモダンのこだわりポイント 床材には天然スプルス無垢材フローリングを使用。

まるでリゾートホテル…… ユーティリティ部分の床

和みモダンのこだわりポイントパウダールームの床材が大理石だと、まるでリゾートホテルでくつろいでいるような、そしてゆるやかで優雅な時間が流れる空間にいるような、そんな上質な気分にひたれます。

物件フォトギャラリー

  • 和みモダン1
  • 和みモダン2
  • 和みモダン3
  • 和みモダン4
  • 和みモダン5
  • 和みモダン6

  • 和みモダン7
  • 和みモダン8
  • 和みモダン9
  • 和みモダン10
  • 和みモダン11
  • 和みモダン12

物件詳細

住居専有面積 3LDK 72.35u
所在地 大阪市淀川区
販売価格 2800万円